Πολύ ...μεγάλες λύσεις για πολύ ...μικρούς χώρους


Το γυαλί, που επιτρέπει τόσο στο φως να περνά όσο και την οπτική επαφή των χώρων, είναι από τα πιο κατάλληλα υλικά για χρήση σε μικρούς χώρους και μπορεί να συμβάλλει σημαντικά όχι μόνο στην γενική τους αισθητική αλλά κυρίως στην λειτουργική διαμόρφωσή τους. 

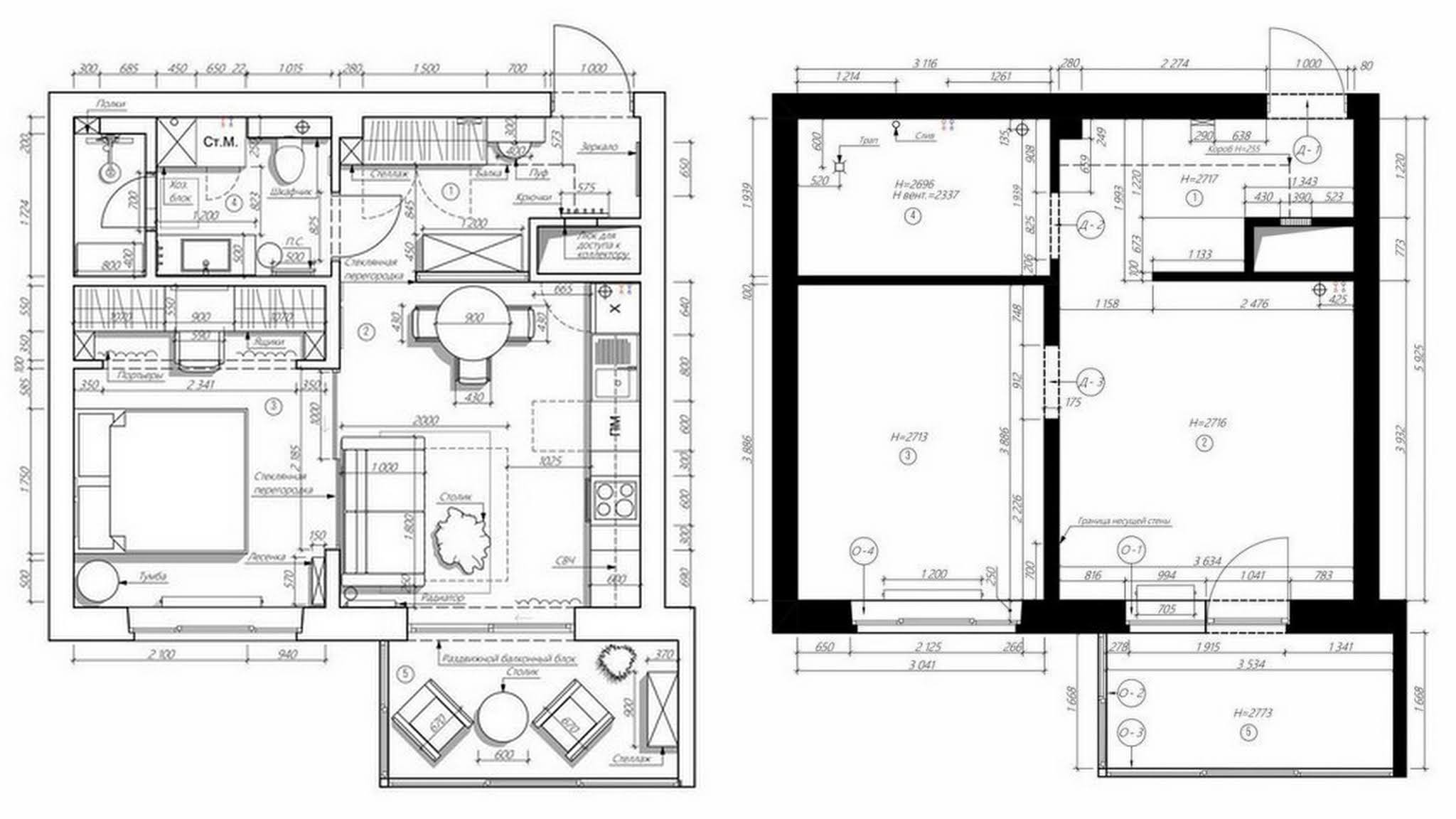
Πολύ ιδιαίτερη μοντέρνα αισθητική αλλά κυρίως ιδιαίτερα λειτουργικές λύσεις διαμόρφωσης, σε διαμέρισμα που μετά την ανακαίνισή του η κλασσική διαρρύθμιση της γκαρσονιέρας με τον ένα ενιαίο χώρο και την μικρή κουζίνα  εσωτερική διαρρύθμιση έχει αντικατασταθεί από την διαίρεση του χώρου σε τέσσερα διαφορετικά τμήματα. 

Το γυαλί, που επιτρέπει τόσο στο φως να περνά όσο και την οπτική επαφή των χώρων, είναι από τα πιο κατάλληλα υλικά για χρήση σε μικρούς χώρους και μπορεί να συμβάλλει σημαντικά όχι μόνο στην γενική τους αισθητική αλλά κυρίως στην λειτουργική τους διαμόρφωση. 
Τα τζαμένια εσωτερικά χωρίσματα με το μαύρο πλαίσιο είναι το μέσο που έχει χρησιμοποιηθεί στον συγκεκριμένο χώρο 46τμ, για να δημιουργηθεί ένα διαμέρισμα που παρά το μικρό του μέγεθος εξυπηρετεί άνετα τις καθημερινές ανάγκες διαβίωσης ενός ατόμου, ενώ και οπτικά ο χώρος δημιουργεί την αίσθηση πως είναι μεγαλύτερος.  



Ένας πολύ όμορφος και λειτουργικός χώρος εισόδου που εκτός από καθρέφτη-κρεμάστρα και μπουφέ-συρταριέρα φιλοξενεί και μια μεγάλη ντουλάπα, άνετη κουζίνα ενιαία με τραπεζαρία - καθιστικό, υπνοδωμάτιο στο οποίο κυριαρχεί η ανοιχτή ντουλάπα πολλαπλών χρήσεων, ένας ακόμη χώρος καθιστικού που έχει δημιουργηθεί με το κλείσιμο του μπαλκονιού και ένα καθ΄όλα βολικό και άνετο μπάνιο, δεν είναι σίγουρα το πιο ...συνηθισμένο για σπίτια μικρότερα των 50τμ, κάτι που έχει επιτευχθεί με τον διαχωρισμό των χώρων με γυάλινα χωρίσματα αντί για συμπαγείς τοίχους. 



Τα γυάλινα χωρίσματα λειτουργούν πολύ ιδιαίτερα και διακοσμητικά, σε έναν χώρο διαμορφωμένο σε μοντέρνο νεανικό στυλ εμπλουτισμένα με ρουστίκ στοιχεία και βασισμένο στα λιγοστά και λιτής γραμμής αλλά ιδιαίτερα πρακτικά έπιπλα, στο λευκό, το μαύρο και τις αποχρώσεις φυσικού ξύλου, που συνολικά διαμορφώνουν μια πολύ ιδιαίτερη ατμόσφαιρα, ένα μεγάλο μέρος της οποίας εκτός των γυάλινων επιφανειών οφείλεται και στον σωστό φωτισμό όλων των χώρων με τα κατάλληλα ανά σημείο φωτιστικά. 


















ΦΩΤΟΓΡΑΦΙΕΣ:
Όνομα

10 must,8,3D ΜΙΝΙΑΤΟΥΡΕΣ,2,3D DECOUPAGE,1,αγορές on line,4,ΑΓΡΩΣΤΩΔΗ,3,αερόστατα από κολοκύθες,1,ΑΕΡΟΦΥΤΑ,1,ΑΛΕΞΑΝΔΡΙΝΑ,2,αλλαγή ταπετσαρίας,3,αλλαγή υφάσματος πολυθρόνας,1,αλλαγή χρήσης αντικειμένων,1,αλόη,1,αλουμινόχαρτο,3,άμμος,4,ΑΝΑΚΥΚΛΩΣΗ,5,ανακύκλωση,4,ΑΝΑΚΥΚΛΩΣΙΜΑ ΥΛΙΚΑ,19,ανακυκλώσιμα υλικά,12,ανθοδέσμες με σφουγγάρι,1,ΑΝΘΡΩΠΟΙ,1,ΑΝΟΙΞΙΑΤΙΚΑ ΛΟΥΛΟΥΔΙΑ,1,ΑΝΟΙΞΙΑΤΙΚΗ ΔΙΑΚΟΣΜΗΣΗ,5,αντικέ γραφεία,1,αντικέ έπιπλα,1,αντικέ πίνακες,1,αντικείμενα σχέδια Decoupage,1,ΑΝΥΔΡΟΙ ΚΗΠΟΙ,2,αποθήκη,1,αποκριάτικα μακιγιάζ,1,αποκριάτικες κατασκευές,5,αποκριάτικες μάσκες,3,αποκριάτικες στολές,6,αποκριάτικη διακόσμηση,2,ΑΠΟΚΡΙΕΣ,15,αποξηραμένα λουλούδια,1,αποξηραμένες κολοκύθες,2,ΑΡΧΙΤΕΚΤΟΝΙΚΗ,28,ΑΡΧΙΤΕΚΤΟΝΙΚΗ ΤΟΠΙΟΥ,1,ασπρόμαυρες διακοσμήσεις,1,αφρολέξ,1,βάζα,1,Βασιλικός,1,ΒΑΣΙΛΟΠΙΤΑ,1,βάψιμο,1,βάψιμο γενικά,20,βάψιμο γυαλί,3,βάψιμο γυαλιού,1,ΒΑΨΙΜΟ ΕΠΙΠΛΩΝ,74,ΒΑΨΙΜΟ ΕΣΩΤΕΡΙΚΩΝ ΧΩΡΩΝ,30,βάψιμο με βερνίκια νυχιών,1,βάψιμο με τεχνοτροπίες,3,βάψιμο μέταλλο,1,βάψιμο μέταλλο σίδερο,1,βάψιμο ξύλου,1,βάψιμο πασχαλινών αυγών,1,βάψιμο πλακάκια,1,βάψιμο τοίχου με σχέδια,2,ΒΑΨΙΜΟ ΤΣΙΜΕΝΤΕΝΙΩΝ ΔΑΠΕΔΩΝ,1,βάψιμο υφασμάτων,1,ΒΑΨΙΜΟ-ΧΡΩΜΑΤΑ,13,ΒΕΛΟΥΔΟ,1,βιβλία,1,βιβλία ευχών,1,ΒΙΒΛΙΟΘΗΚΕΣ,4,βιβλιοθήκες,8,Βιεννέζικη Ψάθα,2,ΒΙΤΡΩ,2,βιτρώ,1,ΒΟΤΑΝΑ,1,ΒΟΤΣΑΛΑ,4,βότσαλα,10,ΒΡΑΧΙΟΛΑΚΙΑ ΓΙΑ ΤΟΝ ΜΑΡΤΗ,1,ΒΡΑΧΟΚΗΠΟΙ,1,βρεφικά αναμνηστικά,1,γάμος βάφτιση,6,ΓΑΜΟΣ-ΒΑΦΤΙΣΗ,12,ΓΙΟΡΤΙΝΟ ΤΡΑΠΕΖΙ,9,ΓΛΑΣΤΡΕΣ,40,γλάστρες με πλακάκια,1,ΓΛΥΠΤΙΚΗ,1,γλυπτική ζωγραφική,1,ΓΝΩΡΙΜΙΑ ΜΕ ΔΗΜΙΟΥΡΓΟΥΣ,2,γραφεία για μικρούς χώρους,1,ΓΡΑΦΕΙΟ,15,γραφείο στο σπίτι,2,γυαλί,16,γυάλινες χριστουγεννιάτικες μπάλες,1,γυαλότουβλα,1,ΓΥΨΟΣ,1,γύψος,3,γυψοσανίδες,1,γωνιακά έπιπλα,1,ΔΑΠΕΔΑ ΒΙΝΥΛΙΟΥ,1,ΔΕΝΤΡΟΣΠΙΤΑ,1,δέρμα,1,διάδρομοι κήπου από παλέτες,1,διακοσμήσεις για την είσοδο του σπιτιού,1,διακοσμήσεις με καναπέδες από παλέτες,1,ΔΙΑΚΟΣΜΗΣΕΙΣ ΜΕ ΚΕΡΙΑ,2,διακοσμήσεις σε γκρι χρώμα,1,διακοσμήσεις σε κόκκινο χρώμα,1,διακοσμήσεις σε μπλε πορτοκαλί,1,διακοσμήσεις σε μωβ χρώμα,1,διακοσμήσεις σε παστέλ αποχρώσεις,2,διακοσμήσεις σε πράσινο και ροζ-μωβ,1,ΔΙΑΚΟΣΜΗΣΕΩΝ ΑΚΤΙΝΟΓΡΑΦΙΕΣ,4,ΔΙΑΚΟΣΜΗΣΗ,138,διακόσμηση,1,διακόσμηση βιτρίνας,1,ΔΙΑΚΟΣΜΗΣΗ ΕΣΩΤΕΡΙΚΩΝ ΧΩΡΩΝ,400,διακόσμηση καθιστικού σε εθνικ στυλ,1,διακόσμηση κόκκινο,1,διακόσμηση κονσόλες,1,διακόσμηση κουζίνας,17,διακόσμηση κρεβατοκάμαρας,8,διακόσμηση με γωνιακά έπιπλα,1,ΔΙΑΚΟΣΜΗΣΗ ΜΕ ΛΟΥΛΟΥΔΙΑ,5,διακόσμηση με πουά,1,διακόσμηση με ταπετσαρία,1,διακόσμηση μικρών χώρων,1,διακόσμηση παιδικού δωματίου,2,διακόσμηση πιάτου,1,διακόσμηση σε άσπρο μαύρο γκρι,1,διακόσμηση σε τραπέζια μπουφέδες,1,διακόσμηση σπιτιού,79,ΔΙΑΚΟΣΜΗΣΗ ΤΟΙΧΩΝ,18,διακόσμηση τοίχων,8,διακόσμηση τούρτας,1,διακόσμηση χαλιά,1,διακοσμητικά από πηλό,1,ΔΙΑΚΟΣΜΗΤΙΚΑ ΜΑΞΙΛΑΡΙΑ,14,διακοσμητικά μαξιλάρια,1,ΔΙΑΚΟΣΜΗΤΙΚΑ ΣΤΕΦΑΝΙΑ,2,διακοσμητικά στεφάνια,4,διακοσμητικά στεφάνια από αλουμίνιο,1,ΔΙΑΚΟΣΜΗΤΙΚΑ ΣΤΥΛ,45,διακοσμητικά φωτάκια,1,διακοσμητικά φωτάκια από ξερά κολοκύθια,1,διακοσμητικά mobiles,1,ΔΙΑΚΟΣΜΗΤΙΚΟΙ ΣΥΝΔΥΑΣΜΟΙ,1,διακοσμητικός κανόνας 60-30-10,1,διαμόρφωση γραφείου,2,ΔΙΑΜΟΡΦΩΣΗ ΔΙΑΚΟΣΜΗΣΗ ΕΞΩΤΕΡΙΚΩΝ ΧΩΡΩΝ,1,ΔΙΑΜΟΡΦΩΣΗ ΚΗΠΟΥ,35,διαμόρφωση κήπου,2,διαμόρφωση μικρού μπαλκονιού,2,διαμόρφωση μικρών σπιτιών,1,διαμόρφωση μικρών χώρων,1,διαμόρφωση παραθαλάσσιων σπιτιών,1,διαμόρφωση χώρου για νηπιαγωγεία παιδικούς σταθμούς,1,ΔΙΑΜΟΡΦΩΣΗ-ΔΙΑΚΟΣΜΗΣΗ ΕΞΩΤΕΡΙΚΩΝ ΧΩΡΩΝ,189,διάτρητοι πίνακες,1,ΔΙΑΤΡΟΦΗ,1,ΔΙΑΦΟΡΑ Εποχιακά,5,ΔΙΑΧΩΡΙΣΤΙΚΑ ΜΠΑΛΚΟΝΙΩΝ,1,διαχωριστικά χώρου,1,ΔΙΕΘΝΗΣ ΚΟΥΖΙΝΑ,1,ΔΙΟΡΑΜΑΤΑ,2,ΕΔΑΦΟΚΑΛΥΨΗ,1,εδαφοκάλυψη κήπων,1,έθνικ διακοσμήσεις,7,ΕΙΔΙΚΕΣ ΠΕΡΙΣΤΑΣΕΙΣ,1,είδος χρώματος ανά υλικό,1,ΕΙΣΟΔΟΣ,9,ΕΛΑΤΟ,1,ΕΛΛΑΔΑ,1,εξοχικό,4,έξυπνες λύσεις για μικρούς χώρους,1,ΕΞΩΤΕΡΙΚΟΙ ΧΩΡΟΙ,113,ΕΞΩΤΕΡΙΚΩΝ ΧΩΡΩΝ,1,ΕΠΑΓΓΕΛΜΑΤΙΚΟΙ ΧΩΡΟΙ,4,επαγγελματικοί χώροι,1,ΕΠΕΝΔΥΣΗ ΚΑΛΟΡΙΦΕΡ,1,ΕΠΙΠΛΑ,55,ΕΠΙΠΛΑ ΑΠΟ ΠΑΛΕΤΕΣ,10,έπιπλα από παλέτες,7,ΕΠΙΠΛΑ ΚΗΠΟΥ,1,έπιπλα κουζίνας,2,έπιπλα μπάνιου,1,ΕΠΙΠΛΑ RATTAN,1,επισμάλτωση μπανιέρας,1,ΕΠΙΤΡΑΠΕΖΙΕΣ ΣΥΝΘΕΣΕΙΣ,1,ΕΠΟΧΙΑΚΑ,3,ΕΡΕΥΝΑ ΑΓΟΡΑΣ,1,έτοιμα καλύμματα επίπλων,1,έτοιμος πηλός,8,εύκαπτη πέτρα-πλακάκι,1,ΕΥΚΟΛΕΣ ΚΑΤΑΣΚΕΥΕΣ,43,εύκολες κατασκευές για στεφάνια,1,ΖΩΓΡΑΦΙΚΗ,10,ζωγραφική σε τοίχους,1,ζωγραφική σε έπιπλα,1,ζωγραφική σε πέτρες,2,ΗΛΙΑΚΑ ΦΩΤΙΣΤΙΚΑ,1,ηλιακά φωτιστικά,7,ΗΜΕΡΟΛΟΓΙΟ ΚΗΠΟΥ,12,ΘΑΛΑΣΣΟΞΥΛΑ,5,θαλασσόξυλα,13,ΘΕΡΜΑΝΣΗ,1,ιδέες βάψιμο,7,ιδέες για βάψιμο επίπλων,2,ιδέες για διαδρόμους μονοπάτια κήπου,1,ιδέες για διαμόρφωση κήπου,1,ιδέες για δώρα σε μετρητά,1,ιδέες για έθνικ διακοσμήσεις,1,ιδέες για έπιπλα ως διαχωριστικά,1,ιδέες για καλύμματα επίπλων,1,ιδέες για κήπο μπαλκόνι,1,ιδέες για κιόσκια σε κήπους αυλές,1,ιδέες για κρεμαστές γλάστρες,1,ιδέες για μικρά μπάνια,1,ιδέες για μικρούς κήπους αυλές,1,ιδέες για μπαλκόνια,2,ιδέες για να φτιάξετε κεφαλάρια,3,ιδέες για παιχνιδοκατασκευές,1,ιδέες για παρτέρια,2,ιδέες για πολύχρωμες κουζίνες,1,ιδέες για ραφιέρες,1,ιδέες για στολισμό καλοκαιρινής βιτρίνας,1,ιδέες για τεχνοτροπίες τοίχου,1,ιδέες για την είσοδο χωλ,2,ιδέες για τούρτες γενεθλίων,1,ιδέες για χριστουγεννιάτικα δώρα,1,ιδέες για ψηφιδωτά σε κήπο,1,ιδέες για decoupage,1,ιδέες για Diaper Cakes,1,ιδέες διακόσμησης πιάτου,1,ιδέες διαμόρφωσης κήπου,2,ιδέες έπιπλα,21,ιδέες επίπλωσης AirBNB,2,ιδέες λύσεις για μικρά καθιστικά,2,ιδέες με πουά υφάσματα,1,ΙΚΕΑ,51,ΙΣΤΟΡΙΑ,2,ΙΣΤΟΡΙΚΑ ΣΠΙΤΙΑ,1,ΚΑΔΡΑ,3,κάδρα,22,κάδρα από αλουμινόχαρτο,1,ΚΑΘΙΣΤΙΚΟ,8,καθρέφτες,12,καθρέφτες με θαλασσόξυλα,1,ΚΑΚΤΟΙ,2,καλάθια από κουρελάκια,1,καλάθια με σκοινί,1,καλάμι,3,καλαμωτές,1,καλέντουλα,1,ΚΑΛΛΙΕΡΓΕΙΑ ΦΥΤΩΝ ΣΕ ΝΕΡΟ,1,ΚΑΛΟΚΑΙΡΙ,80,καλοκαιρινά τραπέζια,1,καλοκαιρινά χαλάκια εισόδου,1,καλοκαιρινές ιδέες για κάδρα,1,καλοκαιρινές κατασκευές,41,ΚΑΛΟΚΑΙΡΙΝΗ ΔΙΑΚΟΣΜΗΣΗ,43,καλοκαιρινή διακόσμηση,18,ΚΑΛΥΜΜΑΤΑ ΕΠΙΠΛΩΝ,2,καλύμματα επίπλων,3,ΚΑΛΥΜΜΑΤΑ ΚΑΛΟΡΙΦΕΡ,1,κάμπινγ,2,ΚΑΝΑΠΕΔΕΣ,4,καναπέδες,9,καναπέδες από παλέτες,2,καπέλα μινιατούρες,1,καρούλια καλωδίων,1,ΚΑΤΑΛΟΓΟΣ ΙΚΕΑ,1,κατασκευέ από σκοινί,1,ΚΑΤΑΣΚΕΥΕΣ,167,κατασκευές από ανακλυκλώσιμα υλικά,1,κατασκευές από ανακυκλώσιμα υλικά,1,ΚΑΤΑΣΚΕΥΕΣ ΑΠΟ ΚΑΛΑΜΙ - ΛΥΓΑΡΙΑ,1,κατασκευές από καφάσια,1,κατασκευές από κολοκύθες,4,κατασκευές από κονσερβοκούτια,3,κατασκευές από κουτάκια αναψυκτικών,1,κατασκευές από λάστιχα αυτοκινήτων,1,ΚΑΤΑΣΚΕΥΕΣ ΑΠΟ ΠΑΛΕΤΕΣ,18,κατασκευές από παλέτες για καταστήματα,1,κατασκευές από ρολό χαρτιού,1,κατασκευές από συρτάρια,1,κατασκευές για κατοικίδια,2,κατασκευές για κατοικίδια από παλέτες,1,ΚΑΤΑΣΚΕΥΕΣ ΓΙΑ ΠΑΙΔΙΑ,37,κατασκευές για παιδικές κουζίνες,1,ΚΑΤΑΣΚΕΥΕΣ ΕΞΩΤΕΡΙΚΩΝ ΧΩΡΩΝ,52,καΤασκευές επίπλων,1,κατασκευές εφαρμογές πατητής τσιμεντοκονίας,1,κατασκευές κεριά,12,κατασκευές κήπος,23,ΚΑΤΑΣΚΕΥΕΣ ΚΗΠΟΥ,1,κατασκευές με βότσαλα,4,κατασκευές με βότσαλα πέτρες,2,κατασκευές με γλάστρες,1,κατασκευές με γυαλότουβλα,1,κατασκευές με γύψο,3,κατασκευές με γυψοσανίδα,1,κατασκευές με δαντέλες σεμέν,1,κατασκευές με διάτρητα πάνελ,1,κατασκευές με έτοιμο πηλό,5,κατασκευές με θαλασσόξυλα,2,κατασκευές με καλάμια,1,κατασκευές με καλούπι,1,κατασκευές με κεραμίδια,3,κατασκευές με κορμούς,1,κατασκευές με κουκουνάρια,3,κατασκευές με κουμπιά,1,κατασκευές με κοχύλια,1,κατασκευές με λινάτσα,1,κατασκευές με μπουκάλια,3,κατασκευές με ξυλάκια χειροτεχνίας,1,κατασκευές με πλακάκια,1,κατασκευές με σεμέν δαντέλες,4,κατασκευές με σκοινί,3,κατασκευές με σπιρτόκουτα,1,κατασκευές με σύρμα,4,κατασκευές με ταπετσαρία,1,κατασκευές με τσιμέντο,7,κατασκευές με τσιμεντόλιθους,1,κατασκευές με υγρό γυαλί,4,ΚΑΤΑΣΚΕΥΕΣ ΜΕ ΥΦΑΣΜΑ,42,κατασκευές με φελιζόλ,2,κατασκευές με φελλό,1,κατασκευές με φύλλα,1,κατασκευές με χαρτί,36,κατασκευές με χαρτί εφημερίδας,1,κατασκευές με χάρτινες αυγοθήκες,1,κατασκευές ρολόγια τοίχου,1,κατασκευές τύπου βιτρώ,1,κατασκευές ψηφιδωτά,1,κατασκευές mobiles,2,κατασκευή αντικέ κάδρα,1,κατασκευή βάσης για κρεμαστής γλάστρας,1,κατασκευή μπωλ από φύλλα,1,κατασκευή παζλ με φωτογραφίες,1,κατασκευή παιδικά κουκλόσπιτα,1,κατασκευή ραφιών από κορνίζες,1,κατασκευή σίτας,1,κατασκευή υφασμάτινων καλαθιών,1,κατασκευή φωτιζόμενο τραπεζάκι,1,κατασκευή φωτιστικών,1,κατασκευή χιονονιφάδες,1,κατασκευή diaper cake,1,κατασκευή diy μελωδών,1,κατασκευή fairy gardens,1,ΚΑΤΟΙΚΙΔΙΑ,1,ΚΑΦΕ,1,ΚΕΑ,1,κεραμίδια,1,κερί,11,ΚΕΡΙΑ,14,κεριά,11,κεριά σιτρονέλας,1,κεφαλάρια,7,ΚΗΠΟΣ,77,ΚΗΠΟΥΡΙΚΗ,313,κηπουρική για παιδιά,1,κηρομπογιές,1,κηροπήγια,6,κηροπήγια από κερί,1,κίτρινοι καναπέδες,1,κλασσικό στυλ,1,κολοκύθες,10,ΚΟΜΟΔΙΝΑ,2,κομοδίνα,5,ΚΟΝΣΕΡΒΟΚΟΥΤΙΑ,20,ΚΟΥΖΙΝΑ,61,κουζίνα,1,ΚΟΥΖΙΝΕΣ ΣΕ ΕΞΩΤΕΡΙΚΟ ΧΩΡΟ,1,κούκλες από ξερές κολοκύθες,1,κουκλόσπιτα,2,κουκουνάρια,4,κουμπιά,1,κουνουπιέρες,1,ΚΟΥΡΤΙΝΕΣ,5,κουρτίνες,13,κουρτίνες ρόμαν,2,κουρτίνες χωρίς ράψιμο,1,κουρτινόξυλα,1,κοχύλια,6,κρακελέ,2,κρεβάτια,3,κρεβατοκάμαρες έθνικ,1,κρέμασμα κάδρων,1,ΚΡΕΜΑΣΤΡΕΣ ΤΟΙΧΟΥ,1,κρεμάστρες τοίχου,3,ΚΤΗΡΙΑ ΤΗΣ ΑΘΗΝΑΣ,1,ΚΩΝΟΦΟΡΑ,1,ΛΑΧΑΝΟΚΗΠΟΣ,3,ΛΕΥΚΟΙ ΚΑΝΑΠΕΔΕΣ,2,λινάτσα,4,μαγνητικοί πίνακες,1,ΜΑΚΡΑΜΕ,3,μαξιλάρια,8,μαξιλάρια πατώματος,1,μαύρο,1,μαυροπίνακες,5,μελωδοί,1,ΜΕΝΟΥΜΕ ΣΠΙΤΙ,1,Μεσογειακό Στυλ,1,ΜΕΣΟΓΕΙΑΚΟΣ ΚΗΠΟΣ,3,μετακόμιση,1,μεταλλικά έπιπλα,1,μεταφορά εικόνας,1,ΜΙΚΡΑ ΜΠΑΛΚΟΝΙΑ,6,ΜΙΚΡΕΣ ΑΛΛΑΓΕΣ,1,ΜΙΚΡΟΙ,1,ΜΙΚΡΟΙ ΧΩΡΟΙ,168,μινιατούρες για νεραϊδόκηπους,1,μοντέρνα έπιπλα από παλέτες,1,μοντέρνο στυλ,8,ΜΠΑΛΚΟΝΙ,26,μπαμπού,1,ΜΠΑΝΙΟ,31,μπάνιο,1,μπατίκ υφάσματα,1,μπλε,2,Μποέμ,1,ΜΠΟΥΦΕΔΕΣ,1,μπωλ από ρολό χαρτιού,1,μωβ,1,ΝΕΑΝΙΚΟ ΔΩΜΑΤΙΟ,3,νεραγκούλες,1,νεραϊδόσπιτα,1,ΝΗΣΙΔΕΣ ΚΟΥΖΙΝΑΣ,1,νοικοκυριό,2,Ντίνα Νικολάου,1,ντουλάπες,1,ΝΤΟΥΛΑΠΙΑ ΚΟΥΖΙΝΑΣ,3,ξερές κολοκύθες,1,ξύλινα κιβώτια,1,ΞΥΛΙΝΑ ΠΑΝΤΖΟΥΡΙΑ,1,ξύλο,40,Ο ΚΟΣΜΟΣ ΓΥΡΩ ΜΑΣ,113,οδηγίες κατασκευής κεριών,1,ΟΔΗΓΟΙ ΑΓΟΡΑΣ,44,ΟΔΗΓΟΣ για παλαίωση επίπλων,1,ΟΔΗΓΟΣ για camping στην Ελλάδα,2,ΟΔΗΓΟΣ κατασκευής για ΠΟΥΦ,1,οδηγός κατασκευής patchwork,1,ΟΙΚΟΛΟΓΙΚΑ ΚΑΘΑΡΙΣΤΙΚΑ,3,οικολογικές πλαστελίνες,1,ΟΙΚΟΛΟΓΙΚΟ ΒΑΨΙΜΟ ΑΥΓΩΝ,1,ΟΙΚΟΝΟΜΙΚΗ ΔΙΑΚΟΣΜΗΣΗ,1,οργάνωση,24,οργάνωση χώρων εργασίας,1,ΟΡΓΑΝΩΣΗ-ΑΠΟΘΗΚΕΥΣΗ,31,ΟΡΧΙΔΕΑ,1,πάγκοι εργασίας,1,παζλ,1,ΠΑΙΔΙ,1,παιδικά αναμνηστικά,1,παιδικά αποτυπώματα,1,παιδικά γραφεία,2,ΠΑΙΔΙΚΕΣ ΚΑΤΑΣΚΕΥΕΣ,30,παιδικές κατασκευές,13,παιδικές κατασκευές από αυγοθήκες,1,παιδικές κατασκευές με χαρτί,1,παιδικές κουζίνες από χαρτόκουτα,1,ΠΑΙΔΙΚΕΣ ΚΟΥΡΤΙΝΕΣ,1,παιδική πισίνα παιχνίδι,1,ΠΑΙΔΙΚΟ ΔΩΜΑΤΙΟ,35,παιχνιδοκατασκευές,5,παλαίωση επίπλων,2,ΠΑΛΕΤΕΣ,32,παλιά συρτάρια,1,παλιές ραπτομηχανές,1,ΠΑΝΣΕΔΕΣ,1,παπουτσοθήκες,1,παραβάν,1,ΠΑΡΤΕΡΙΑ,9,παρτέρια,14,παστέλ,1,ΠΑΣΧΑ,47,ΠΑΣΧΑΛΙΝΑ ΑΥΓΑ,6,ΠΑΣΧΑΛΙΝΑ ΚΑΛΑΘΙΑ,1,ΠΑΣΧΑΛΙΝΑ ΣΤΕΦΑΝΙΑ,2,ΠΑΣΧΑΛΙΝΑ BAZAAR,2,ΠΑΣΧΑΛΙΝΕΣ ΚΑΤΑΣΚΕΥΕΣ,30,ΠΑΣΧΑΛΙΝΕΣ ΛΑΜΠΑΔΕΣ,2,ΠΑΣΧΑΛΙΝΗ ΔΙΑΚΟΣΜΗΣΗ,12,ΠΑΣΧΑΛΙΝΗ ΔΙΑΚΟΣΜΗΣΗ ΒΙΤΡΙΝΑΣ,1,ΠΑΣΧΑΛΙΝΟ ΑΜΠΑΛΑΖ,1,ΠΑΣΧΑΛΙΝΟ ΤΡΑΠΕΖΙ,3,πατητή τσιμεντοκονία,1,ΠΑΤΙΝΑ,1,πατίνα,1,πάτσγουορκ,1,ΠΑΧΥΦΥΤΑ,26,πέργκολες,2,ΠΕΡΙΒΑΛΛΟΝ,5,πέτρα,5,πέτρινα κιόσκια,1,πηλός,17,πιάτα με decoupage,1,πίνακες ανακοινώσεων,1,πίνακες κάδρα από βότσαλα,1,ΠΛΑΚΑΚΙΑ,2,πλακάκια,10,ΠΛΑΚΟΣΤΡΩΣΕΙΣ,1,πλεχτά από χαρτί εφημερίδας,1,ΠΟΛΙΤΙΣΜΟΣ,2,πολλαπλασιασμός με μοσχεύματα,1,ΠΟΛΥΘΡΟΝΕΣ,3,πολυθρόνες,2,ΠΟΛΥΘΡΟΝΕΣ-ΚΟΥΝΙΣΤΕΣ ΠΟΛΥΘΡΟΝΕΣ,1,πορομπετόν,3,πόρτες,2,ΠΟΥ ΘΑ ΒΡΩ ΚΑΙ ΠΟΣΟ,21,ΠΟΥ ΘΑ ΒΡΩ ΚΑΙ ΠΟΣΟ...,6,πουφ,1,πράσινο της ελιάς,1,προβλήματα υγρασίας,1,προζύμι,1,προστασία επίπλων,1,ΠΡΟΣΤΑΣΙΑ ΦΥΤΩΝ,1,προστατευτικές μάσκες DIY,1,πρωτομαγιάτικα στεφάνια,4,πως θα αποξηράνετε λουλούδια,1,πως θα προσθέσετε χρώμα στο σπίτι,1,πως θα φτιάξετε αντικουνουπικά κεριά,1,πως θα φτιάξετε κάλυμμα καλοριφέρ καλοριφέρ,1,πως θα φτιάξετε κεριά,1,πως θα φτιάξετε κουρτίνες,1,πως θα φτιάξετε μαξιλάρια χωρίς γάζωμα,1,πως θα φτιάξετε πλαστελίνες,1,πως θα φτιάξετε τραπέζια από παλέτες,1,πως θα φτιάξετε Diaper Cakes,1,πως θα φτιάξω,9,ΡΑΠΤΙΚΗ,18,ραπτική,5,ράφια,11,ραφιέρες βιβλιοθήκες από παλέτες,1,ράψιμο μαξιλαριών,1,ριγέ,1,ρολόγια τοίχου,3,ΣΑΛΟΝΙ,47,ΣΑΛΟΝΙ ΚΑΘΙΣΤΙΚΟ,3,ΣΑΛΟΝΙ-ΚΑΘΙΣΤΙΚΟ,114,σαπούνι,1,ΣΕΜΕΝ,2,σεμέν-δαντέλες,9,σιδερώστρες,1,σιδερώστρες για μικρούς χώρους,1,σκάλες,1,Σκανδιναβικό στυλ,13,σκελετοί για στεφάνια,1,ΣΚΙΑΣΗ ΕΞΩΤΕΡΙΚΩ ΧΩΡΩΝ,1,σκοινί,15,σπιρτόκουτα,2,σπιτάκια μινιατούρες,1,ΣΠΙΤΙ-ΑΝΑΚΑΙΝΙΣΗ-ΣΥΝΤΗΡΗΣΗ,27,ΣΠΙΤΙΑ COB,1,σπιτικά αναψυκτικά,1,σπιτικές μαρμελάδες,1,σπιτικό ψωμί,1,ΣΤΕΓΑΣΤΡΑ ΕΙΣΟΔΟΥ,1,ΣΤΗΝ ΚΟΥΖΙΝΑ,15,στολές κλόουν,1,στολίδια με ζύμη σόδας,1,στολισμός για μπαλκόνια,1,ΣΥΛΛΟΓΕΣ ΑΝΤΙΚΕΙΜΕΝΩΝ,1,συμβουλές για αλλαγή γλάστρας,1,συμβουλές για Λεβάντα,1,συμβουλές κηπουρικής για Βασιλικό,1,συμβουλές κηπουρικής φτέρη,1,συνθέσεις λουλουδιών,1,συνθέσεις με επιπλέοντα κεριά,1,συνθέσεις με καρπούς φρούτα,1,ΣΥΝΘΕΤΙΚΟ ΓΚΑΖΟΝ,1,σύρμα,5,συρμάτινες κατασκευές,1,ΣΥΡΤΑΡΙΕΡΕΣ,1,σφουγγάρια ανθοδετικής,1,σχέδια για ψηφιδωτά,1,σωστό πότισμα,1,ταινίες Led,2,ΤΑΞΙΔΙΑ,2,ΤΑΠΕΤΣΑΡΙΕΣ,2,ταπετσαρίες,1,τάρτες,1,ΤΕΧΝΗ,15,ΤΕΧΝΙΚΕΣ ΠΑΛΑΙΩΣΗΣ,71,τεχνικές παλαίωσης,8,τεχνική μεταφοράς εικόνας,1,ΤΕΧΝΟΛΟΓΙΑ,3,ΤΕΧΝΟΤΡΟΠΙΕΣ,1,τεχνοτροπίες,3,ΤΕΧΝΟΤΡΟΠΙΕΣ-ΤΕΧΝΙΚΕΣ,16,ΤΖΑΚΙ,10,ΤΟ ΛΟΥΛΟΥΔΙ ΤΟΥ ΜΗΝΑ,12,ΤΟ ESHOP ΤΗΣ ΕΒΔΟΜΑΔΑΣ,7,ΤΡΑΠΕΖΑΚΙΑ ΣΑΛΟΝΙΟΥ,12,ΤΡΑΠΕΖΑΡΙΑ,23,τραπεζαρίες για κήπο μπαλκόνι,1,τραπέζια,2,τραπέζια από παλέτες,1,ΤΡΑΠΕΖΙΑ-ΚΟΝΣΟΛΕΣ,1,ΤΡΙΑΝΤΑΦΥΛΛΙΑ,1,ΤΡΟΧΟΣΠΙΤΑ,1,τσιμέντο,13,τσιμεντόλιθοι,4,τσόχα,5,υγρό γυαλί,5,ΥΠΝΟΔΩΜΑΤΙΟ,48,ύφασμα,37,υφάσματα επίπλωσης,1,φελιζόλ,4,φελλός,2,ΦΕΤΕΣ ΞΥΛΟΥ,1,ΦΘΙΝΟΠΩΡΙΝΑ ΣΤΕΦΑΝΙΑ,1,ΦΘΙΝΟΠΩΡΙΝΗ ΔΙΑΚΟΣΜΗΣΗ,2,φθινοπωρινή διακόσμηση,6,ΦΘΙΝΟΠΩΡΟ,11,φλοράλ,1,ΦΟΙΤΗΤΙΚΑ ΠΑΚΕΤΑ,1,ΦΟΙΤΗΤΙΚΟ ΣΠΙΤΙ,4,φροντίδα κατοικίδιων,1,ΦΤΙΑΞΤΟ ΜΟΝΟΣ ΣΟΥ ΣΤΗΝ ...ΚΟΥΖΙΝΑ,47,φύλλα,5,φυσικά υλικά,1,φυτά,67,ΦΥΤΑ ΕΣΩΤΕΡΙΚΟΥ ΧΩΡΟΥ,30,ΦΥΤΑ ΣΕ ΓΛΑΣΤΡΕΣ,1,φωτισμός εξωτερικών χώρων,2,φωτισμός εσωτερικών χώρων,2,φωτισμός με ταινίες Led,1,ΦΩΤΙΣΤΙΚΑ,2,φωτιστικά,30,φωτιστικά από θαλασσόξυλα,1,φωτιστικά από κληματόβεργες,1,φωτιστικά από μπουκάλια,1,φωτιστικά με σκοινί,1,ΦΩΤΟΓΡΑΦΙΑ,5,φωτογραφίες,4,ΧΑΛΙΑ,8,χαλιά,12,ΧΑΛΙΑ ΣΙΣΑΛ,1,ΧΑΡΤΑΕΤΟΣ,1,ΧΑΡΤΕΣ,1,χαρτί,44,ΧΕΙΜΩΝΙΑΤΙΚΗ ΔΙΑΚΟΣΜΗΣΗ,1,ΧΕΙΡΟΠΟΙΗΤΑ ΚΕΡΙΑ,15,χειροποίητα σαπούνια,2,χειροποίητα στολίδια,1,ΧΕΙΡΟΤΕΧΝΙΚΑ,1,ΧΡΙΣΤΟΥΓΕΝΝΑ,194,χριστουγεννιάτικα γούρια,1,χριστουγεννιάτικα δέντρα,1,ΧΡΙΣΤΟΥΓΕΝΝΙΑΤΙΚΑ ΔΩΡΑ,1,ΧΡΙΣΤΟΥΓΕΝΝΙΑΤΙΚΑ ΣΤΕΦΑΝΙΑ,7,ΧΡΙΣΤΟΥΓΕΝΝΙΑΤΙΚΑ BAZAAR,2,ΧΡΙΣΤΟΥΓΕΝΝΙΑΤΙΚΕΣ ΓΙΡΛΑΝΤΕΣ,1,ΧΡΙΣΤΟΥΓΕΝΝΙΑΤΙΚΕΣ ΔΙΑΚΟΣΜΗΣΕΙΣ ΓΙΑ ΤΟ ΤΖΑΚΙ,2,ΧΡΙΣΤΟΥΓΕΝΝΙΑΤΙΚΕΣ ΚΑΤΑΣΚΕΥΕΣ,108,ΧΡΙΣΤΟΥΓΕΝΝΙΑΤΙΚΗ ΒΙΤΡΙΝΑ,1,ΧΡΙΣΤΟΥΓΕΝΝΙΑΤΙΚΗ ΔΙΑΚΟΣΜΗΣΗ,70,ΧΡΙΣΤΟΥΓΕΝΝΙΑΤΙΚΗ ΔΙΑΚΟΣΜΗΣΗ ΓΙΑ ΠΟΡΤΕΣ,1,χριστουγεννιάτικη συνταγή για ψωμί,1,χριστουγεννιάτικο αμπαλάζ για μπουκάλια,1,ΧΡΙΣΤΟΥΓΕΝΝΙΑΤΙΚΟ ΤΡΑΠΕΖΙ,8,χριστουγεννιάτικο τραπέζι,2,ΧΡΙΣΤΟΥΓΕΝΝΙΑΤΙΚH ΔΙΑΚΟΣΜΗΣH,1,ΧΡΙΣΤΟΥΓΕΝΝΙΚΑΤΙΚΑ ΔΕΝΤΡΑ ΓΙΑ ΜΙΚΡΟΥΣ ΧΩΡΟΥΣ,1,ΧΡΙΣΤΟΥΕΝΝΑ,1,χρώμα,2,χρώμα μαυροπίνακα,2,χρώμα σπρέϊ,1,χρώματα για κατασκευές,1,χρώματα κιμωλίας,21,χρώματα σπρέϊ,1,χρώματα σπρέϋ,1,ΧΡΩΜΑΤΙΚΟΙ ΣΥΝΔΥΑΣΜΟΙ,102,χτιστές κατασκευές για το μπάνιο,1,ΧΤΙΣΤΟΙ ΚΑΝΑΠΕΔΕΣ,2,χωριάτικο στυλ,1,Χώροι για άτομα με κινητικά προβλήματα,1,χώροι για παιδικές δραστηριότητες,1,ψάθα,5,ΨΑΘΙΝΑ ΧΑΛΙΑ,1,ψηφιδωτά,15,ψηφιδωτά νούμερα για διεύθυνση σπιτιού,1,AirBNB,4,Aithrio.com,1,Annie Sloan,10,anysticker,1,ART,10,avramis,1,bar,1,Bohemian,5,boho style,11,bonsai,1,camping,4,camping στην Ελλάδα,2,Chalk of the Town,1,chalk paint,1,collage,1,COTTAGE,1,country στυλ,3,Covid19,10,Deco Tip,1,DECOUPAGE,27,decoupage γενικά,4,decoupage με ύφασμα,1,decoupage σε έπιπλα,2,decoupage σε τσάντες παπούτσια,2,DESIGN,8,DESIGN IS THIS,1,diaper cakes,1,DIY,170,DIY ΕΠΙΠΛΑ,127,DIY έπιπλα,24,DIY ΠΑΙΔΙΚΕΣ ΣΤΟΛΕΣ,4,DIY ΦΩΤΙΣΤΙΚΑ,29,DIY XALIA,5,DIY-ΚΑΤΑΣΚΕΥΕΣ,633,DIY-ΚΑΤΑΣΚΕΥΕΣ ΚΑΤΑΣΚΕΥΕΣ ΜΕ ΥΦΑΣΜΑ,1,Driftwood Art,2,DRIVE&LISTEN,1,E-SHOPS,1,Easy DIY,51,ektorp,1,ESHOPS,4,fairy gardens,3,fairy lights,1,faiy gardens,1,Fallingwater,1,floral,2,FOOD ARTIST,1,food plating,1,GAMES,1,Garden Answer,1,graffiti,2,GREEN LIVING,25,HOME,1,HOME TOURS,246,HOTELS TOURS,35,HOTELSTOURS,1,Hundertwasser,1,ikea,8,illustradays,1,inart,1,instagram,1,INSTAGRAM HOMES,50,INTERNET,2,JAPANDI,1,Kintsugi,1,KOYZINA,2,laminate,1,led,3,ledokosmos,1,LEGO,3,leroy merlin,4,loft,1,marble ideas,1,minimal στυλ,1,natural christmas,1,nautical στυλ,2,oikianet.gr,1,pakketo.com,1,Paper Wicker,1,patchwork,3,pets,4,pour painting,1,powertex,2,praktiker,4,proofing hyperstone,1,PUZZLE,1,quilting,2,recycle,8,resin,3,retro,3,RETRO ΕΠΙΠΛΑ,1,reuse,36,Royal Design Studio,4,RUSTIC,1,sgraffito,1,shabby chic στυλ,2,Soulouposeto,1,stencils,11,STREET ART,1,SUPER MARKETS ΑΓΟΡΕΣ ONLINE,1,terrarium,2,TikTok,1,upcycling,1,Valentine's Day,1,VELVET,1,video,2,videos,65,vintage,34,vintage κουζίνες,3,wabi sabi,1,WALL ART,1,wall decoration,1,WALL MURALS,2,wall&design.gr,1,WEB,5,windowswap,1,XEIROTEXNIKA,1,xinara house,1,
ltr
item
SOULOUPOSETO: Πολύ ...μεγάλες λύσεις για πολύ ...μικρούς χώρους
Πολύ ...μεγάλες λύσεις για πολύ ...μικρούς χώρους
https://blogger.googleusercontent.com/img/b/R29vZ2xl/AVvXsEit-2PjrfEW8R467Wlo3XvZaO5IrKWrsisBOW5BrYsU4EImxskF1l7w9TbMBYSfEbqUJnvwJq0sE0M8W6Nj9Leom2zyGiL7ZHukM90BS6dLiyZCwmrIiDHxtinMzgmmEqY0Q725SUBLFHQ/
https://blogger.googleusercontent.com/img/b/R29vZ2xl/AVvXsEit-2PjrfEW8R467Wlo3XvZaO5IrKWrsisBOW5BrYsU4EImxskF1l7w9TbMBYSfEbqUJnvwJq0sE0M8W6Nj9Leom2zyGiL7ZHukM90BS6dLiyZCwmrIiDHxtinMzgmmEqY0Q725SUBLFHQ/s72-c/
SOULOUPOSETO
https://www.soulouposeto.gr/2021/02/home-tour-se-moderno-poy-leitourgiko-diamerisma-46tm.html
https://www.soulouposeto.gr/
https://www.soulouposeto.gr/
https://www.soulouposeto.gr/2021/02/home-tour-se-moderno-poy-leitourgiko-diamerisma-46tm.html
true
4011188418940387580
UTF-8
Loaded All Posts Not found any posts Δείτε τα όλα Readmore Reply Cancel reply Delete By Home PAGES Άρθρα Δείτε τα όλα ΣΑΣ ΠΡΟΤΕΙΝΟΥΜΕ ΝΑ ΔΕΙΤΕ ΚΑΙ... ΚΑΤΗΓΟΡΙΑ ARCHIVE ΑΝΑΖΗΤΗΣΗ ALL POSTS Not found any post match with your request Back Home Κυριακή Δευτέρα Τρίτη Τετάρτη Πέμπτη Παρασκευή Σάββατο Sun Mon Tue Wed Thu Fri Sat January February March April May June July August September October November December Ιαν Φεβ Μαρ Απρ May Ιουν Ιουλ Αυγ Σεπ Οκτ Νοε Δεκ just now 1 minute ago $$1$$ minutes ago 1 hour ago $$1$$ hours ago Yesterday $$1$$ days ago $$1$$ weeks ago more than 5 weeks ago Followers Follow THIS PREMIUM CONTENT IS LOCKED STEP 1: Share to a social network STEP 2: Click the link on your social network Copy All Code Select All Code All codes were copied to your clipboard Can not copy the codes / texts, please press [CTRL]+[C] (or CMD+C with Mac) to copy Περιεχόμενα άρθρου